top of page
Dům Tribus - předáno
Beroun - Králův Dvůr - Levín | velikost 165m2 | pozemek 734m2
Prodej individuálně řešeného moderního rodinného domu 4+kk s terasou, prostorná obytná část s kuchyní, 3 pokoje s úložným prostorem, komora. Nízkoenergetický - dřevená posuvná trojskla, jednovrstvé zdivo Heluz Family 2in1, plynový kotel, podlahové vytápění. Prostorná garáž pro dvě vozidla. Cena včetně nadstandardního dokončení - aktuálně ještě možnost klientských změn . Zajistíme pro Vás financování.
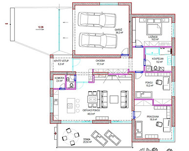
Půdorys domu Tribus

Základní parametry:
pozemek: parc. č. 337/126
kanalizace: tlaková
vodovod: obecní
internet: optické připojení
zastavěná plocha: 202 m2
užitná plocha: 165 m2
terasa: 25.5 m2
nádrž na dešťovou vodu 4 m3
orientace terasy: Jih
Vysoké standardy domu:
-
Kondenzační plynový kotel Vailant
-
Teplovodní podlahové vytápění
-
Obvodové zdivo: Heluz Family 38 2in1
-
Železobetonový monolitický strop
-
Posuvná dřevěná okna s izolačním trojsklem
-
Nadstandardně vysoký strop v obytné části
-
Bezfalcové interiérové dveře 210cm
![]() | ![]() | ![]() | ![]() | ![]() | ![]() |
|---|
Foto Tribus
bottom of page






